89415 Lauingen, 92m² Wohnfläche, 3.50Zimmer, Baujahr 2021.


Meine Notiz

Eckdaten

Zimmer
3,5 Zimmer
verfügbar ab
02/26

Kosten

Nebenkosten
250,00 EUR

Ausstattungsmerkmale

Küche
Einbauküche
Heizung
Zentralheizung
Befeuerung
Gasheizung
Möbliert
teilmöbliert

Energieausweis

Heizungsart
Zentralheizung
Baujahr
2021

Beschreibung

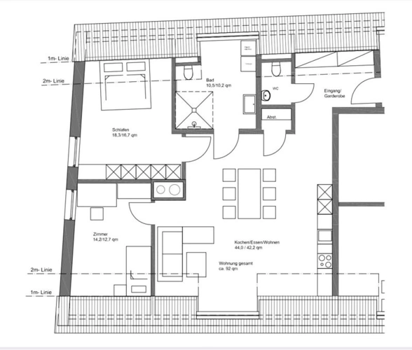
3,5 ZKB 92 m² 02/26 975,- 250,- Lauingen Zentrum, gepflegt, Bj. 2021, DG, Aufzug, barrierefrei, teilmöbl. AR, BmF, FBH, Keller, sep.WC, Tel. 0170-9635993, Online-ID: 151410 Diese schöne DG-Wohnung in der dritten Etage wurde barrierefrei ausgebaut und 2021 erstmals bezogen, weshalb sich das Objekt in einem makellosen Zustand befindet. Das Gebäude, in dem sich die Wohnung befindet, wurde ebenfalls komplett saniert. Zu dem Apartment zählen neben dem großzügigen Koch-/Ess-/Wohnbereich mit neuer, hochwertiger Küche zwei geräumige abgeschlossene Zimmer, ein Badezimmer mit viel Tageslicht, inkl. schreinergefertigtem Spiegelschrank und Waschtisch, sowie ein separates Gäste-WC und ein kleiner Abstellraum. Die Wohnung ist über einen modernen Fahrstuhl bequem zu erreichen. Außerdem überzeugt der großzügige, auch für gehbehinderte Bewohner bestens geeignete Schnitt. Ihnen steht außerdem ein großer Kellerraum als zusätzlicher Stauraum zur Verfügung.Genießen Sie die zentrale Lage mit tollem und interessantem Ausblick. Alle Geschäfte und Dienstleistungen sind fußläufig zu erreichen. Ausstattung: Fußbodenheizung in allen Räumen, barrierefreie große Dusche, Waschmaschine und Trockner im Badezimmer möglich, zentrale Wohnraumlüftung; Hochwertige Einbauküche und schreinergefertigte Badmöbel sind in der Kaltmiete enthalten. Lage: Absolut zentral und trotzdem ruhig, an bester Stelle für einen unterhaltsamen Ausblick den ganzen Tag. Sonstiges: Geeignet für ältere, ggf. gehbehinderte Einzelpersonen oder Paare, aber auch für junge Paare mit max. 1 Kind. weitestgehend für Rollstuhl geeignet

Karte